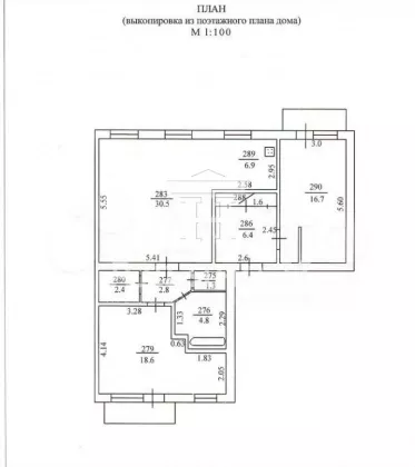
Продается 3-х комн. квартира, 92 кв.м., 3/5 эт
Обзор№ - 1693
| Стоимость | 7 000 000   | 
|---|---|
| Доля в квартире | Нет | 
| Комнат в квартире | 3 | 
| Площадь, кв.м. | 92 | 
| Жилая площадь | 65 | 
| Площадь кухни, кв.м. | 6 | 
| Этаж | 3 | 
| Этажность | 5 | 
| Материал стен | Экспериментальные материалы | 
Адрес
| Населенный пункт | Азов | 
|---|---|
| Улица | улица Инзенская | 
В избранное Продается 3-к. кв.
Объект - #1693
Продается отличная квартира в западном микрорайоне. Очень тихий район, Квартира состоит из двух 2-х комнатных квартир, соединенных в одну, все документы в порядке. В квартире 2 застекленных балкона. вместительная кладовая. 3 сплит-системы, 2 водонагревателя. В квартире остается мебель и частично бытовая техника. Квартира готова для проживания. в 2-х минутах ходьбы расположены школа, детский сад, городская больница. Звоните и записывайтесь на просмотр.



















































